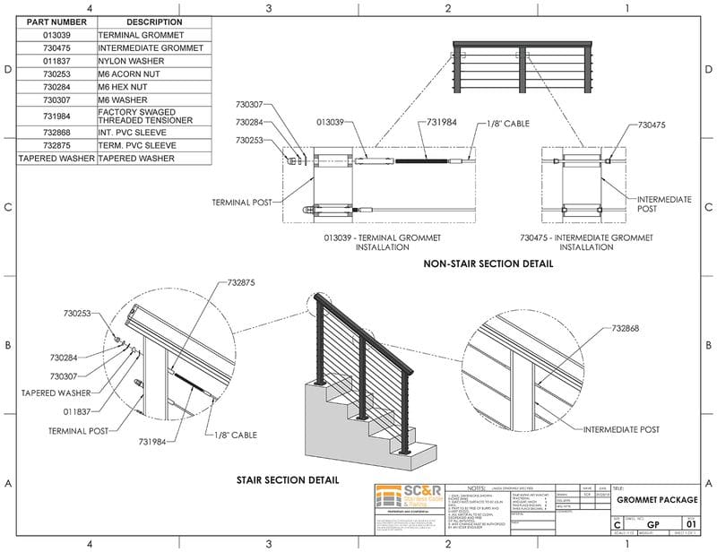
PVC Sleeve for Intermediate Stair Posts

Login to view prices

Description

Prevent corrosion between your stainless steel cable and aluminum stair posts with this clear, UV resistant PVC Heat Shrink Tubing. After slipping the tubing over the cable, just apply heat until it shrinks tight for a secure barrier.

Intended for INTERMEDIATE STAIR POSTS anchoring 1/8″ CABLE.

Product # 732868

Additional information

Weight 0.01 lbs

You may also like…