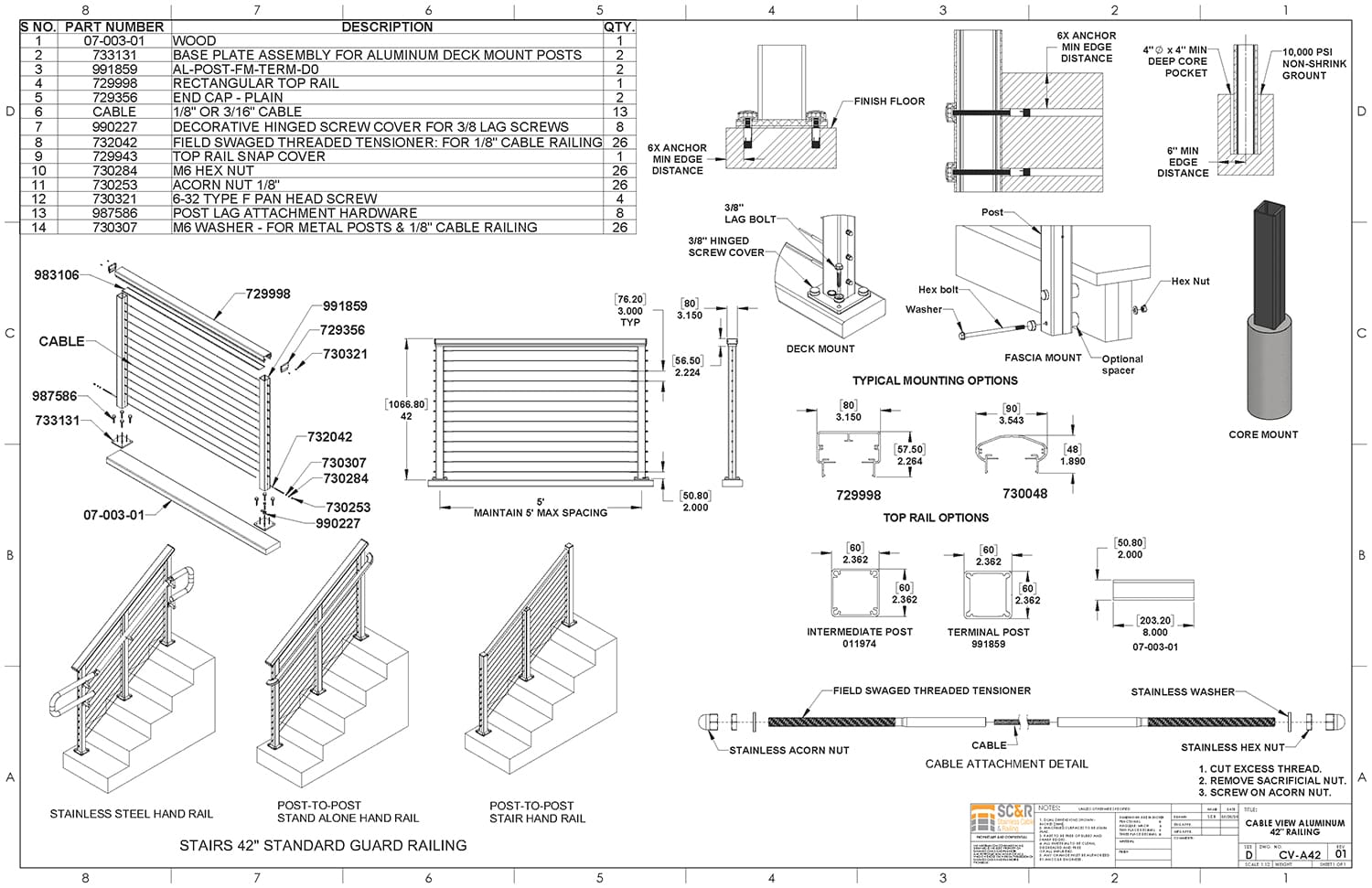
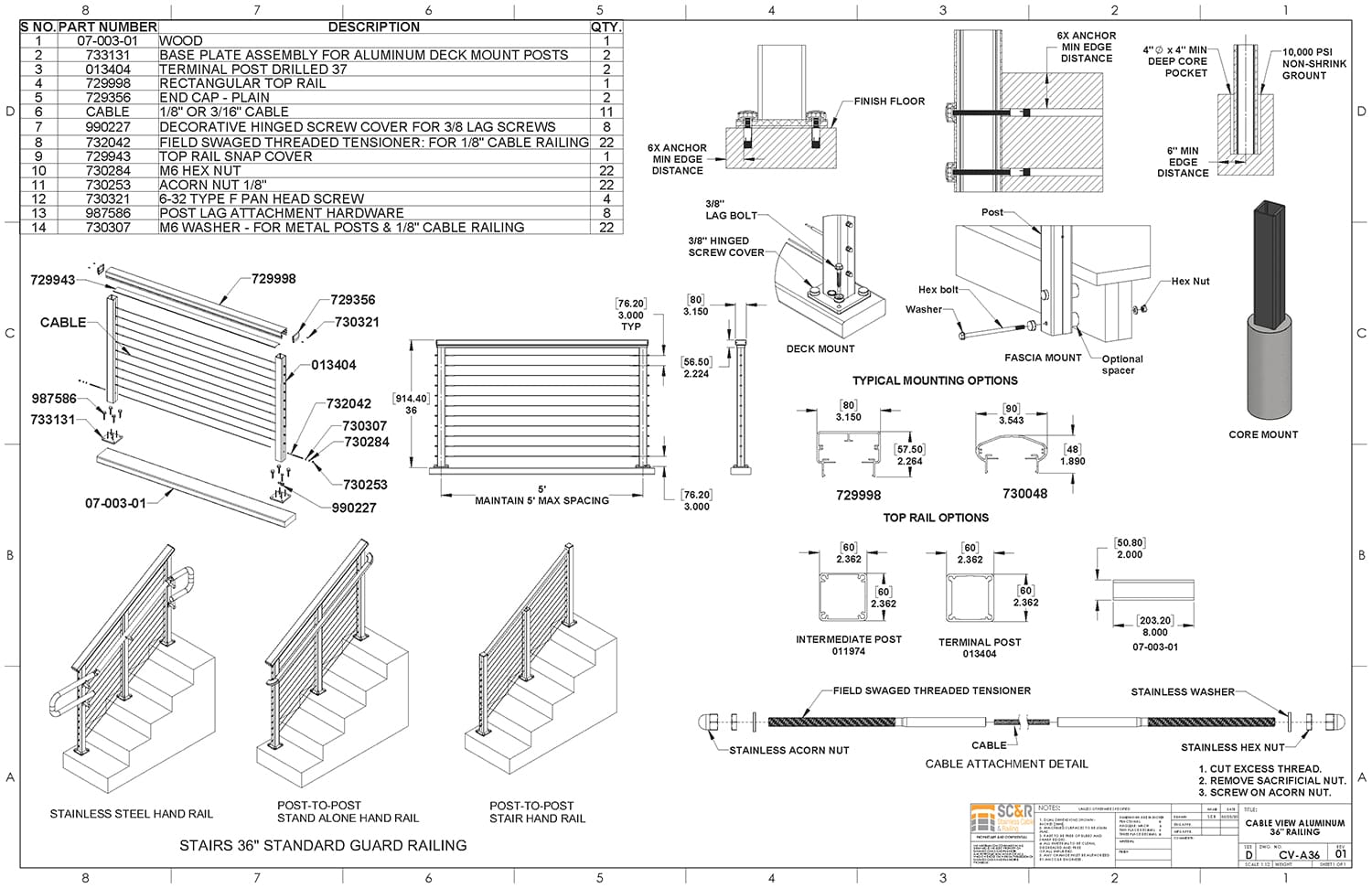
CableView™ Aluminum
Our aluminum components are specially engineered to fit together easily and seamlessly, with reinforced designs made specifically for cable railing applications.
System Options
- Rail Height: 36in, 42in, or Custom
- Mount Style: Deck (Surface), Fascia (Side), or Core (Embedded)
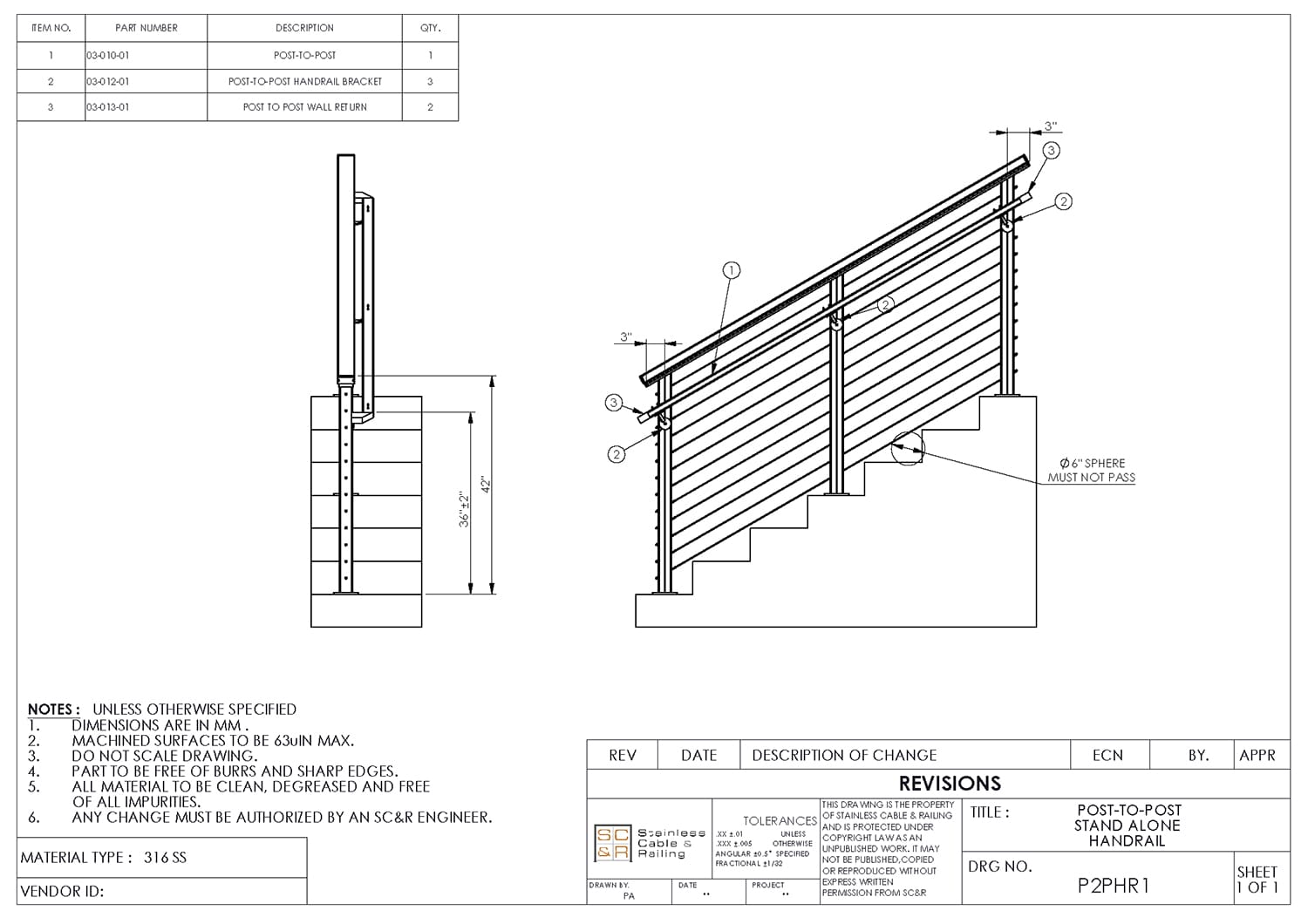
- Top Rail: Rectangular, Shaped, Post-to-Post Handrail, and/or Wood







